Nous utilisons des cookies pour garantir le bon fonctionnement du site et, avec votre consentement, pour mesurer l’audience et améliorer votre expérience. Vous pouvez modifier vos choix à tout moment via le lien de gestion des cookies en bas de chaque page. Politique de confidentialité
Mise en conformité d'un logement à Watemael-Boitsfort
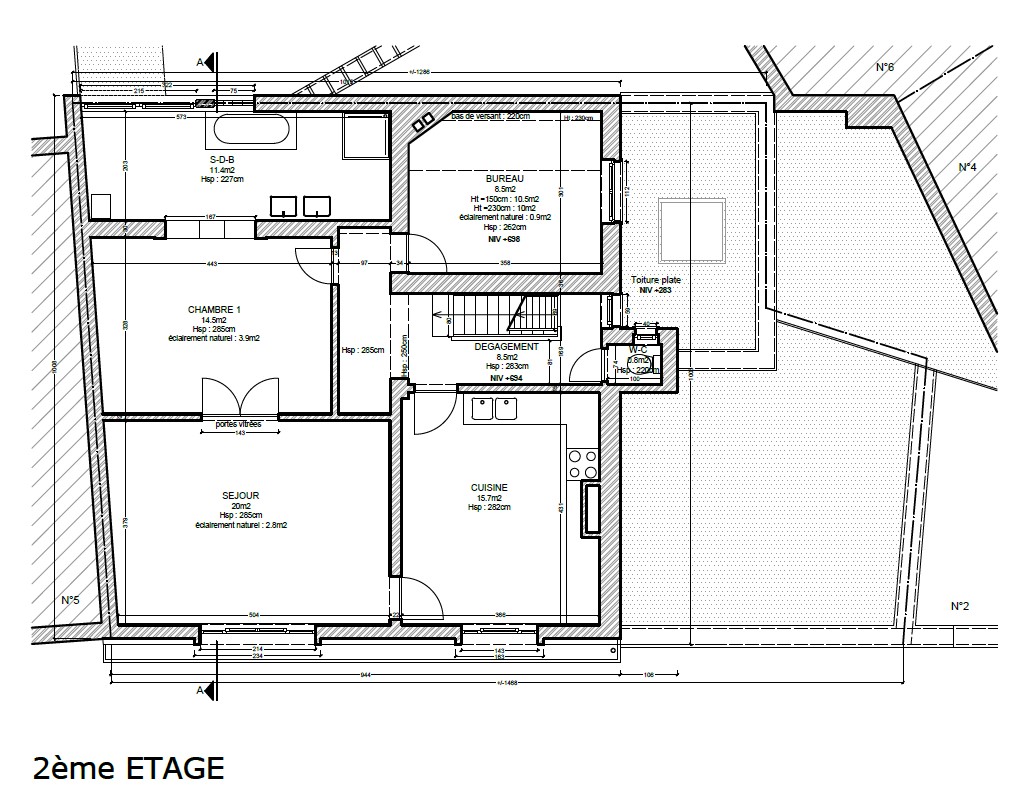
FERMETURE ANCIEN BALCON TERRASSE
Régularisation d'une infraction urbanistique à Watermael-Boitsfort : fermeture d'une ancienne terrasse
Notre client souhaitait régulariser un appartement situé au 2ᵉ étage d’un immeuble à Watermael-Boitsfort. Les travaux non conformes concernaient :
• La fermeture d’une ancienne terrasse en façade arrière, transformée en salle de bain
• La création d’un duplex par connexion entre le 2ᵉ et le 3ᵉ étage via le placement d’un escalier privatif
Ces infractions urbanistiques ont été révélées lors de la réception des renseignements urbanistiques délivrés par la commune de Watermael-Boitsfort, bloquant la vente du bien. Le propriétaire a fait appel à nous pour trouver une solution afin de régulariser l’infraction urbanistique dans les meilleurs délais dans le cadre de la future vente immobilière de l’appartement.
Solution proposée par VMAR Architectes : régularisation urbanistique simplifiée
Grâce à un travail approfondi de recherche d’éléments de preuves d’ancienneté, notre équipe d’architectes à peu démontrer que les travaux étaient antérieurs à l’an 2000. Nous avons également pu prouver au service d’urbanisme de Watermael-Boitsfort que les actes irréguliers n’entraînaient aucune dérogation à la réglementation urbanistique en vigueur au moment de leur exécution.
Fort de ces éléments, nous avons conseillé à notre client de solliciter une régularisation urbanistique simplifiée, conformément à l’article 330 §3 du CoBAT (Code bruxellois de l’aménagement du territoire).
En effet pour pouvoir faire application de la régularisation simplifiée, il faut que le projet de régularisation rencontre différentes conditions : antériorité à l’an 2000 et aucune dérogation à la règlementation en vigueur au moment de la réalisation des infractions ou à la règlementation actuelle.
Résultat : obtention du permis de régularisation
Le service d’urbanisme de Watermael-Boitsfort a accepté notre demande et octroyé la régularisation urbanistique. Cette démarche a permis à notre client de :
• Débloquer sa transaction immobilière
• Éviter une forte dépréciation du prix de vente
• Mettre son bien en conformité avec la législation urbanistique bruxelloise
Vous êtes confronté à une infraction urbanistique à Watermael-Boitsfort ou dans une autre commune bruxelloise ? VMAR Architectes vous accompagne dans vos démarches de régularisation et de mise en conformité.
Vous avez des questions ?
N’hésitez pas à nous contacter pour des détails supplémentaires, nous serons ravis de vous aider.