Nous utilisons des cookies pour garantir le bon fonctionnement du site et, avec votre consentement, pour mesurer l’audience et améliorer votre expérience. Vous pouvez modifier vos choix à tout moment via le lien de gestion des cookies en bas de chaque page. Politique de confidentialité
Mise en conformité d'une maison unifamiliale
AMENAGEMENT TERRASSE
Régularisation urbanistique à Auderghem : aménagement des combles, création d’une terrasse avec escalier, modifications de façade et abri de jardin
La maison unifamiliale située dans commune d’Auderghem, le long du boulevard du Triomphe, a fait l’objet, au fil des années, de plusieurs aménagements réalisés sans permis d’urbanisme préalable. Ces interventions concernent :
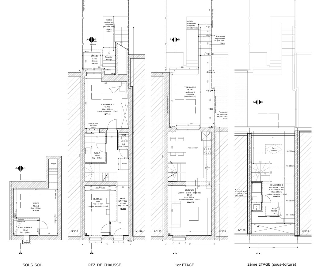
- l’aménagement des combles en pièce d’habitation,
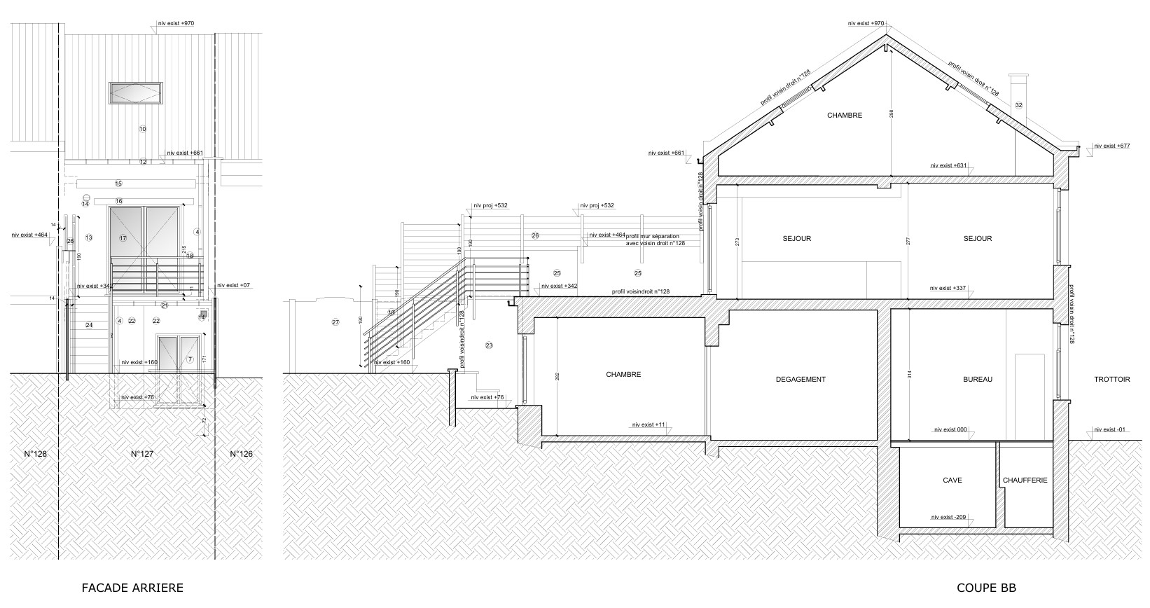
- l’aménagement d’une terrasse sur la toiture plate de l’annexe avec un escalier donnant accès au jardin,
- des modifications en façade avant (menuiseries, mise en peinture et conduit de chaudière en dérogation au RCU),
- ainsi que le placement d’un abri de jardin en fond de parcelle ne respectant pas les dimensions maximales autorisées pour être dispensé de permis d’urbanisme suivant le Titre II de l’arrêté de minime importance.
Bien qu’aucun procès-verbal d’infraction n’ait été dressé par l’urbanisme d’Auderghem, plusieurs observations figurant dans les renseignements urbanistiques ont mis en évidence la nécessité d’introduire une demande de permis d’urbanisme. Une démarche de régularisation urbanistique a donc été entreprise par notre cliente pour mettre en conformité sa maison.
Vous êtes propriétaire à Auderghem et vous avez réalisé des travaux sans permis ? VMAR Architectes vous accompagne dans votre démarche de régularisation urbanistique. Contactez-nous
.
Solution apportée par notre bureau d’architecte : obtention d’un permis d'urbanisme pour la régularisation urbanistique à Auderghem
Analyse préalable de la situation existante
VMAR Architectes a été sollicité afin d’introduire une demande de permis d’urbanisme ayant pour objet la mise en conformité urbanistique de l’ensemble des actes et travaux irréguliers.
Notre bureau d’architectes a procédé à une analyse approfondie de la situation existante, basée sur :
- l’étude des renseignements urbanistiques délivrés par la commune d’Auderghem,
- l’analyse de la règlementation urbanistique applicable suivant la datation des actes et travaux à régulariser.
- La recherches de preuves d’ancienneté (vues aériennes historiques, acte notarié, etc.)
- l’état actuel de la maison d’un point de vue constructif.
Cette analyse a permis d’identifier précisément les infractions urbanistiques à régulariser, tout en tenant compte du contexte urbanistique spécifique du site : existence d’un PPAS, inscription en zone de revitalisation urbaine et en pôle de développement prioritaire.
Élaboration du projet de mise en conformité
Sur cette base, VMAR Architectes a élaboré un projet de mise en conformité urbanistique visant à régulariser :
- l’aménagement des combles en espace habitable,
- la terrasse avec escalier en façade arrière,
- les modifications de la façade avant,
- le placement de l’abri de jardin.
Le projet ne se limite pas à une simple régularisation : il intègre également des améliorations qualitatives, comme la mise en place d’un brise-vue pour respecter le code civil en matière de servitude de distance (anciennement appelé servitude de vue) ainsi que des interventions esthétiques en façade avant visant à améliorer l’intégration du bien dans son contexte bâti et valoriser le caractère de cette petite maison typique bruxelloise.
Gestion des dérogations au RRU
Le dossier intègre par ailleurs des dérogations dûment motivées au Règlement Régional d’Urbanisme (RRU), portant sur l’éclairement naturel, les superficies de certaines pièces et la profondeur de certains éléments existants. Ces dérogations sont inhérentes à toute procédure de régularisation d’un bâtiment existant : les normes actuelles du RRU s’appliquent en effet à des constructions neuves, et leur application stricte à des immeubles existants nécessite une justification appropriée de façon à convaincre l’autorité compétente que les dérogations peuvent être octroyées et ne son pas de nature au non respect du bon aménagement des lieux.
Pourquoi faire appel à un architecte spécialisé en régularisation urbanistique à Bruxelles ?
La régularisation d’une infraction urbanistique à Auderghem — ou dans toute autre commune de la Région de Bruxelles-Capitale — est une procédure spécifique qui se distingue fondamentalement d’une demande de permis d’urbanisme classique. Elle requiert :
- une connaissance approfondie du CoBAT (Code bruxellois de l’Aménagement du Territoire), notamment des dispositions relatives aux infractions et à leur prescription,
- une maîtrise du RRU et des règlements communaux d’urbanisme (RCU) applicables, y compris dans leurs versions antérieures,
- la capacité à documenter et dater les travaux réalisés, souvent sans plans ni archives,
- une expérience et connaissance de l’ensemble des anciennes règlementations urbanistique (règlement sur la bâtisse, etc.)
Grâce à l’approche rigoureuse de notre bureau, l’urbanisme d’Auderghem a octroyé le permis de régularisation de la maison, à la plus grande satisfaction de notre cliente.
Ce projet illustre l’importance de confier une procédure de régularisation urbanistique à un bureau d’architectes disposant d’une expertise spécifique en droit de l’urbanisme.
VMAR Architectes intervient en matière de régularisation d’infractions urbanistiques dans l’ensemble des communes de la Région de Bruxelles-Capitale : Auderghem, Ixelles, Uccle, Woluwe-Saint-Pierre, Woluwe-Saint-Lambert, Etterbeek, Watermael-Boitsfort, et au-delà.
Vous avez des questions ?
N’hésitez pas à nous contacter pour des détails supplémentaires, nous serons ravis de vous aider.