Nous utilisons des cookies pour garantir le bon fonctionnement du site et, avec votre consentement, pour mesurer l’audience et améliorer votre expérience. Vous pouvez modifier vos choix à tout moment via le lien de gestion des cookies en bas de chaque page. Politique de confidentialité
Ajout d'un logement supplémentaire dans les combles d'un immeuble
DIVISION MAISON
Régularisation urbanistique à Auderghem : reconnaissance d'un logement aménagé dans les combles sans permis
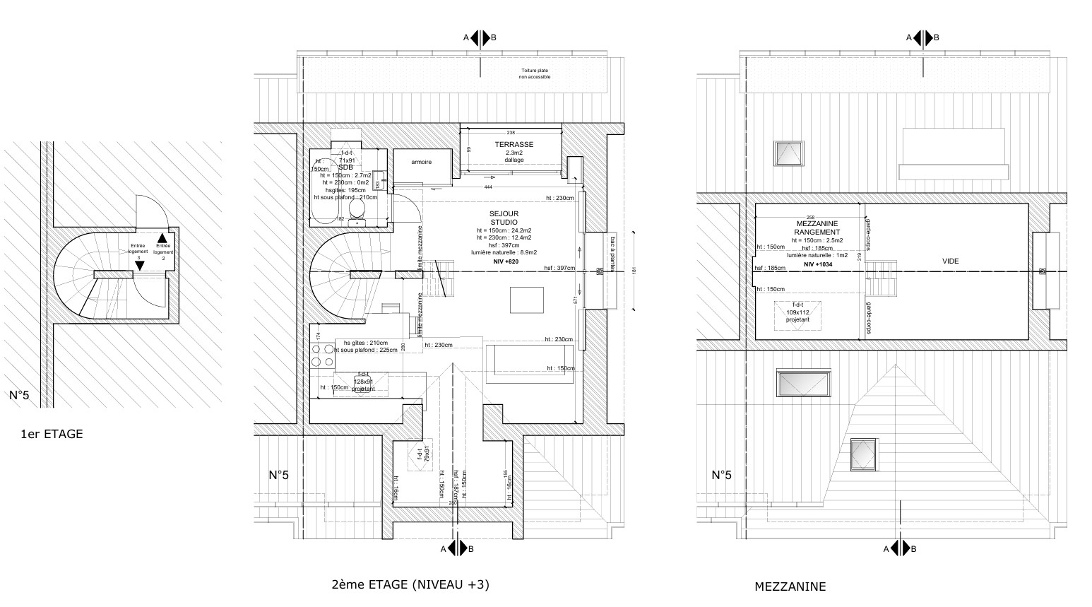
Dans cet immeuble de logements situé sur le territoire de la commune d’Auderghem, entre la forêt de Soignes et le boulevard du Souverain, le logement aménagé au 2ᵉ étage n’est pas reconnu par l’urbanisme. En situation de droit (situation légale), ce niveau était affecté à des combles-grenier. Dans les faits, il est occupé depuis de nombreuses années en tant que studio disposant de ses propres équipements et d’un espace extérieur privatif (terrasse tropézienne).
Cette divergence entre situation autorisée et situation existante résulte d’une modification du nombre et de la répartition des logements au sein de l’immeuble, réalisée sans permis d’urbanisme préalable. Même en l’absence de procès-verbal d’infraction, cette configuration constitue une infraction urbanistique au sens du CoBAT : l’ajout d’un logement au sein d’un immeuble est un aménagement soumis à demande de permis d’urbanisme. La propriétaire, qui n’est pas à l’origine de cette transformation, a souhaité engager une démarche de régularisation volontaire et de bonne foi. Afin de mettre fin à cette insécurité juridique et pouvoir faire officiellement reconnaître le logement qu’elle occupe, elle a fait appel à VMAR Architectes pour l’introduction d’une demande de permis d’urbanisme de régularisation.
Solution apportée par VMAR Architectes - la régularisation du logement supplémentaire
Nous avons pu démontrer que le logement existait avant le 1er janvier 2000, condition essentielle pour l’application de la procédure de régularisation simplifiée prévue à l’article 330, § 3, du CoBAT. Plusieurs éléments probants attestent de cette ancienneté : l’acte de base de l’immeuble datant de 1996 décrit explicitement ce logement comme un lot distinct, et un compteur de gaz individuel y était déjà actif dès la fin des années 1980. Information recueillie grâce à notre demande d’historique chez SIBELGA.
Sur le plan fonctionnel, même s’il est compacte, le logement présente une belle habitabilité — un espace de vie principal bénéficiant d’une grande hauteur sous toiture, un éclairement naturel généreux assuré par des baies et des fenêtres de toit, une salle de bain indépendante, ainsi qu’une terrasse en façade arrière également visible sur les orthophotoplans de 1996. L’ensemble de ces éléments confirme que ce niveau n’a jamais été exploité comme simple grenier, mais bien comme logement à part entière depuis l’origine.
Sur cette base, nous avons constitué un dossier de permis d’urbanisme pour la mise en conformité urbanistique démontrant que les actes et travaux à régulariser étaient conformes à la réglementation en vigueur au moment de leur réalisation, tout en répondant aux exigences actuelles en matière d’habitabilité et de sécurité. Le projet ne nécessite aucune dérogation au Règlement Régional d’Urbanisme et a été soumis à l’avis du SIAMU, conformément aux prescriptions légales.
Cette régularisation à Auderghem illustre l’importance d’une expertise spécifique en matière d’infraction urbanistique, notamment dans les dossiers liés à la reconnaissance de logements anciens non autorisés. La maîtrise du CoBAT, l’analyse rigoureuse des preuves historiques et la compréhension des normes applicables à différentes époques permettent de sécuriser durablement des situations existantes qui ne pourraient pas nécessairement être autorisées dans le cadre d’un projet neuf. Grâce à cette approche, la situation urbanistique du logement a été pleinement régularisée.
Vous avez des questions ?
N’hésitez pas à nous contacter pour des détails supplémentaires, nous serons ravis de vous aider.