Division d'une maison en 3 logements à Bruxelles Forest

DIVISION MAISON

façade avant d’un immeuble situé face au parc dudden, Forest

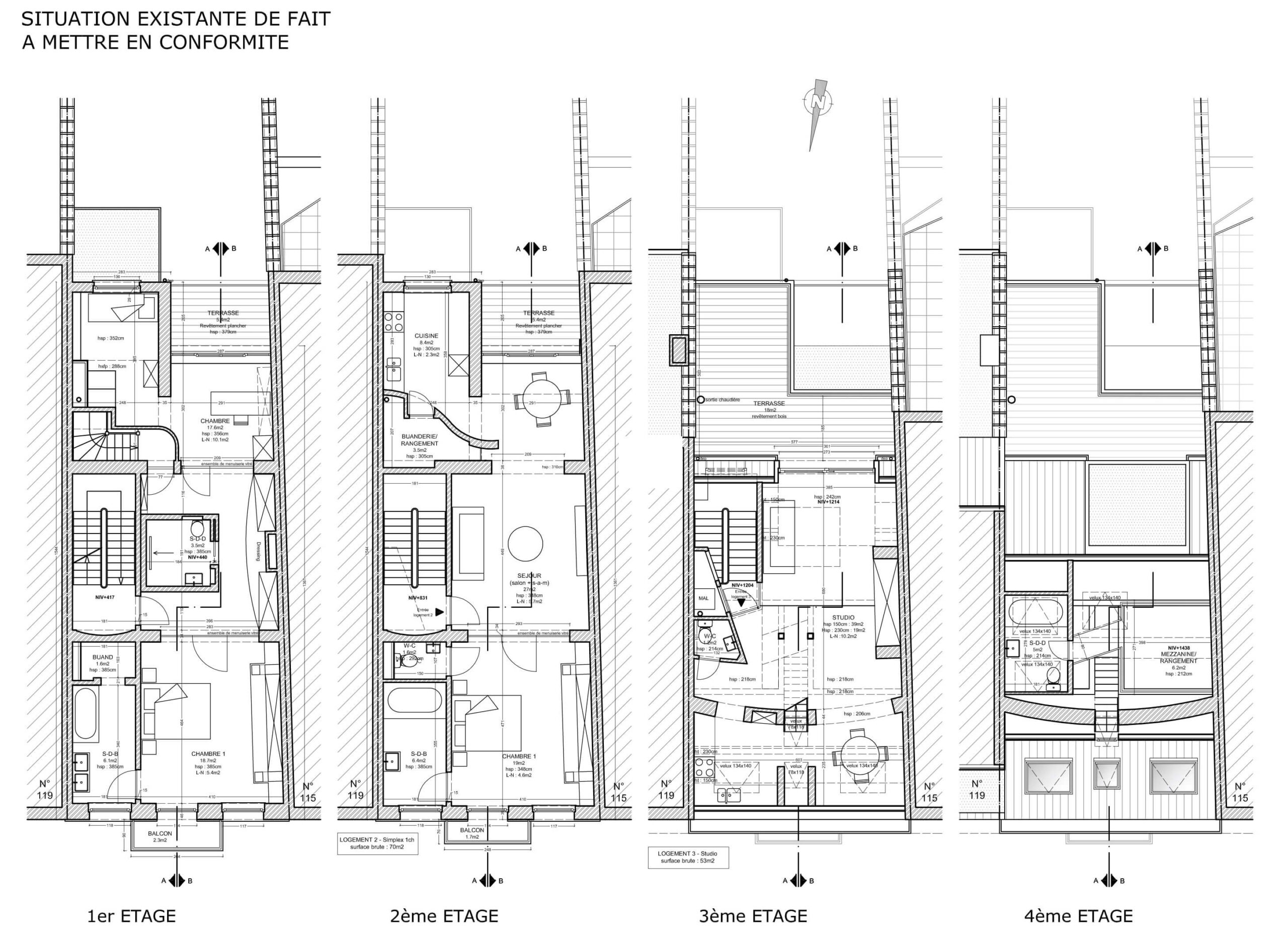
Description du problème urbanistique : division d'une maison en 3 logements à Bruxelles

Située en face du Parc de Forest, cette ancienne maison de maître a été divisée en trois logements sans demande de permis d’urbanisme préalable : un triplex, un simplex et un studio aménagé sous les combles. Des infractions supplémentaires devaient également être régularisées, incluant la modification de la profondeur du bâtiment, la création de terrasses sur toitures plates, des modifications structurelles ainsi que des changements à l’esthétique de la façade avant.

Solution apportée par notre bureau d’architectes : régularisation des 3 logements aménagés

Le nombre d’infractions urbanistiques à régulariser était considérable. Dès notre première réunion, nous avons établi un historique précis des différentes irrégularités, ce qui est crucial pour développer une défense adéquate et spécifique au bien. Lors de notre expertise, nous avons confronté les aménagements irréguliers aux réglementations urbanistiques actuelles, mais aussi à celles en vigueur au moment où les travaux ont été réalisés. Cette approche est essentielle pour déterminer si le bien comporte des dérogations et pour pouvoir les justifier de la meilleure des façons et ainsi obtenir un avis favorable de la part de l’administration de l’urbanisme.

Vous avez des questions ?

N’hésitez pas à nous contacter pour des détails supplémentaires, nous serons ravis de vous aider.

Contactez-nous