Nous utilisons des cookies pour garantir le bon fonctionnement du site et, avec votre consentement, pour mesurer l’audience et améliorer votre expérience. Vous pouvez modifier vos choix à tout moment via le lien de gestion des cookies en bas de chaque page. Politique de confidentialité
Permis d'urbanisme à Schaerbeek : division d'une maison en 3 logements
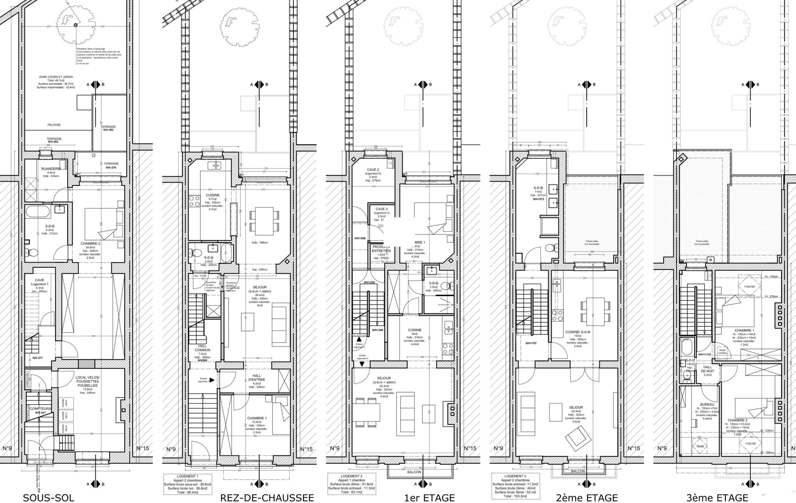
DIVISION MAISON
Description du problème urbanistique : division d'une maison en 3 logements
A Schaerbeek, le propriétaire de cette maison nous a contactés pour régulariser la division de sa maison en 3 logements.
Solution apportée par notre bureau d’architectes : régularisation des 3 logements aménagés
Comment régulariser la division d’une maison en plusieurs logements ? C’est l’une des questions que l’on nous pose le plus fréquemment. De manière générale, les instances urbanistiques disposent de plusieurs critères d’évaluation pour déterminer si une maison peut être divisée ou non. A Schaerbeek, par exemple, l’administration a rédigé une ligne de conduite pour définir si une maison peut être divisée en plusieurs logements. Notre expérience quotidienne dans ce type de régularisation urbanistique nous permet de formuler une argumentation solide en fonction de chaque projet, augmentant ainsi les chances de recevoir un avis favorable de l’urbanisme pour le permis d’urbanisme déposé.
Vous avez des questions ?
N’hésitez pas à nous contacter pour des détails supplémentaires, nous serons ravis de vous aider.