Nous utilisons des cookies pour garantir le bon fonctionnement du site et, avec votre consentement, pour mesurer l’audience et améliorer votre expérience. Vous pouvez modifier vos choix à tout moment via le lien de gestion des cookies en bas de chaque page. Politique de confidentialité
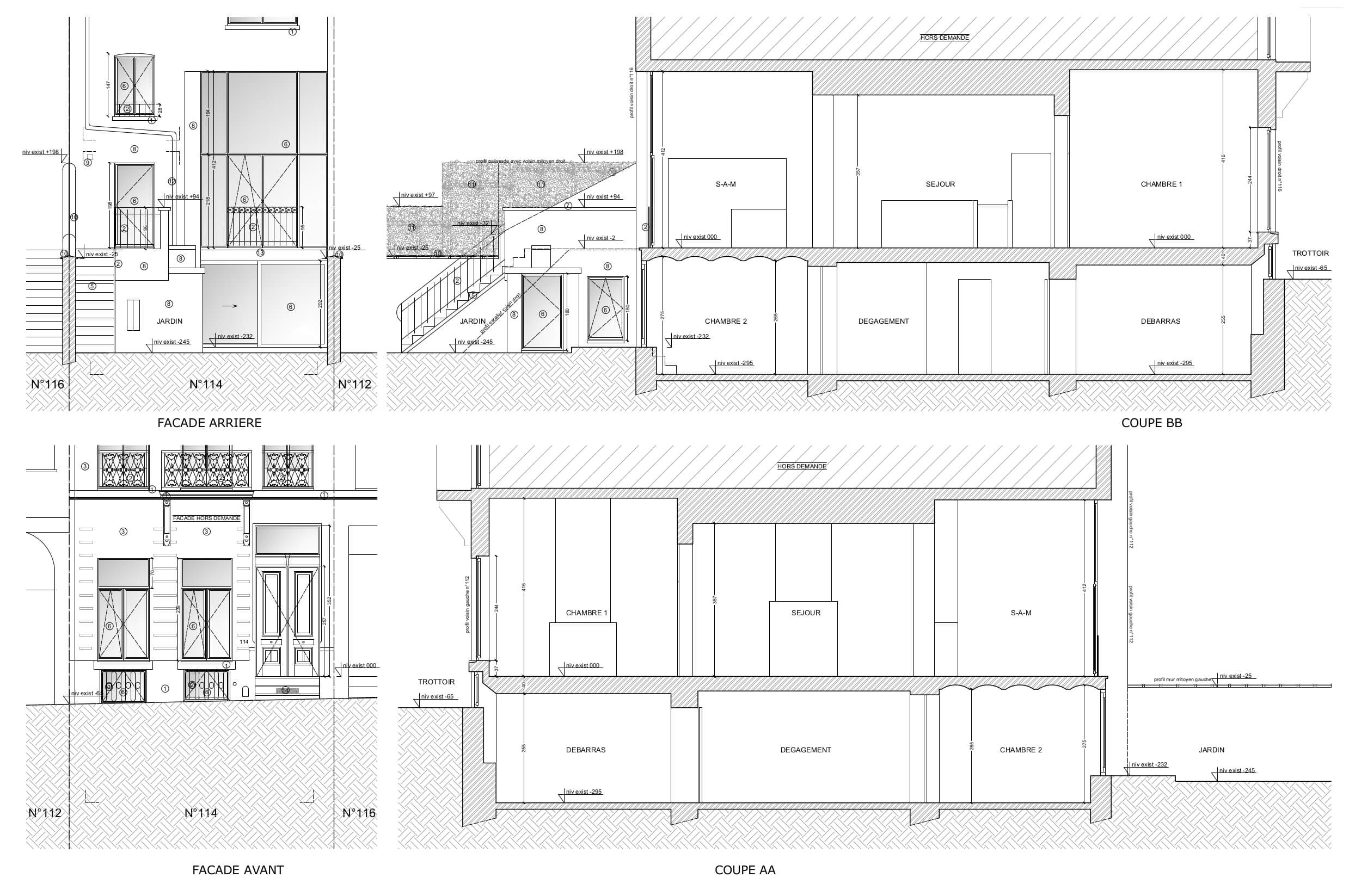
Permis d'urbanisme à Bruxelles-Ville : modification de la répartition des pièces d'un logement souplex
MODIFICATION DE LA REPARTITION
Description du problème urbanistique : modification de la répartition des pièces d'un logement souplex
A Bruxelles-Ville, un logement souplex a été aménagé sans respecter les plans d’urbanisme accordés. Les modifications comprenaient le déplacement de certaines pièces et le non-respect de leurs superficies initiales, ainsi que la diminution des espaces communs de l’immeuble. Ces changements ont été effectués sans demande préalable de permis et ont entraîné certaines dérogations aux normes d’habitabilité du RRU.
Solution apportée par notre bureau d’architectes : régularisation des aménagements du souplex
En présentant un dossier détaillé, nous avons démontré les avantages des modifications apportées par rapport à la disposition originale des pièces. Ces ajustements ont permis d’améliorer la fonctionnalité et l’usage du souplex, répondant mieux aux besoins actuels des occupants. L’urbanisme a reconnu les bénéfices de ces aménagements et a accordé la régularisation urbanistique du souplex.
Vous avez des questions ?
N’hésitez pas à nous contacter pour des détails supplémentaires, nous serons ravis de vous aider.