Nous utilisons des cookies pour garantir le bon fonctionnement du site et, avec votre consentement, pour mesurer l’audience et améliorer votre expérience. Vous pouvez modifier vos choix à tout moment via le lien de gestion des cookies en bas de chaque page. Politique de confidentialité
Modification de la répartition de deux logements à Berchem-Sainte-Agathe
MODIFICATION DE LA REPARTITION
Description du problème urbanistique : modification de la répartition de deux logements à Berchem-Sainte-Agathe
Dans le cadre d’un projet de vente immobilière, il est aujourd’hui courant que le notaire attire l’attention des propriétaires sur l’importance d’une situation urbanistique parfaitement conforme avant toute mise sur le marché.
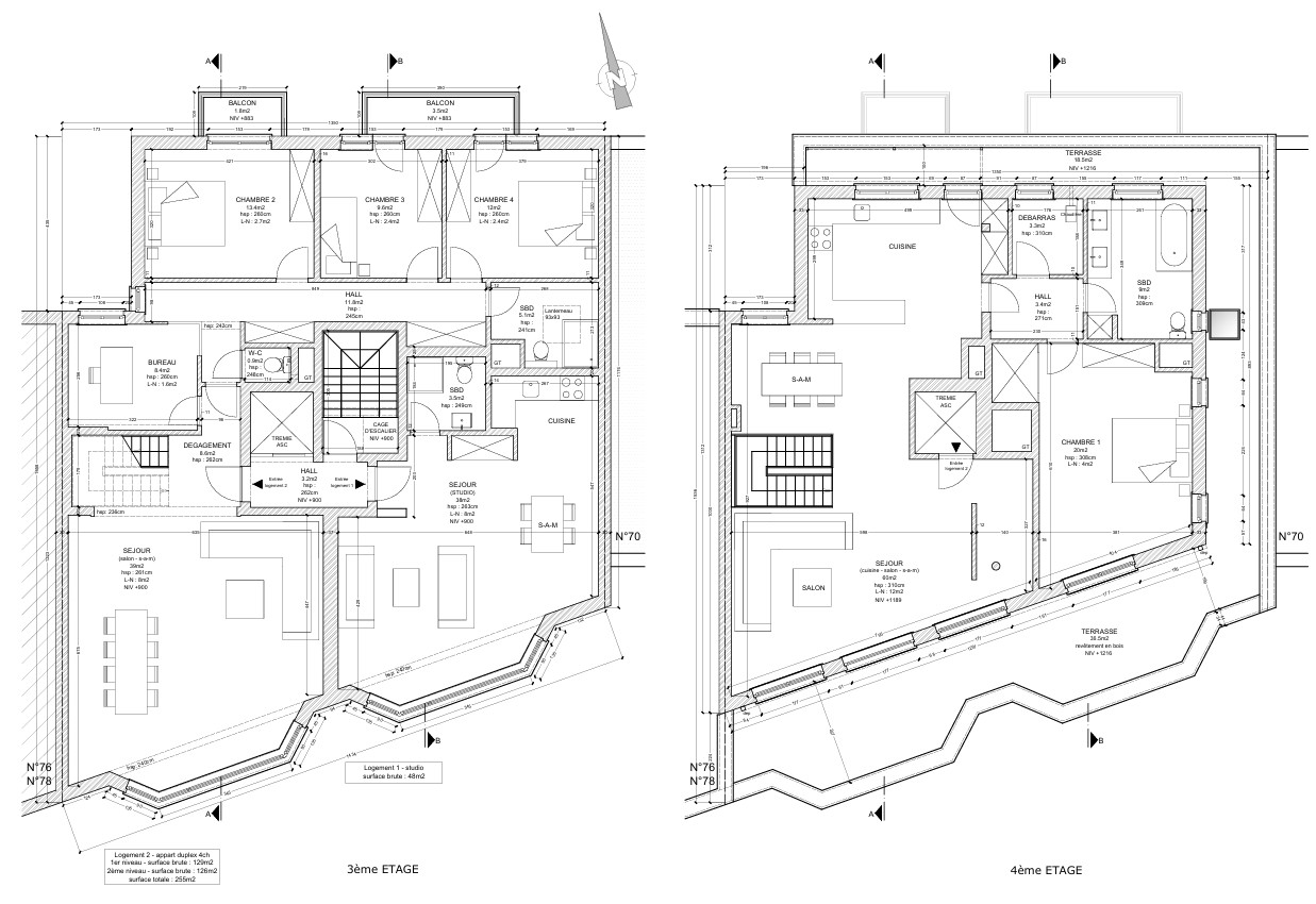
À Berchem-Sainte-Agathe, deux logements situés aux 3ᵉ et 4ᵉ étages d’un immeuble à appartements présentaient certaines divergences entre la situation autorisée par le permis d’urbanisme pour la construction de l’immeuble en 1999 et la configuration réellement construite.
La situation reconnue par l’urbanisme prévoyait, deux appartements deux chambres de superficie équivalente. Dans les faits, la cloison séparative entre les deux logements avait été déplacée, entraînant un transfert de superficie de l’un vers l’autre : l’un des appartements se trouvait ainsi agrandi au détriment du second, dont la surface habitable avait été réduite d’autant.
Bien qu’aucun procès-verbal d’infraction n’ait été dressé et que les logements soient occupés de longue date, le notaire a recommandé aux propriétaires d’anticiper la vente en procédant à une mise en conformité urbanistique volontaire, afin d’éviter toute difficulté lors de la rédaction du compromis de vente ou de l’acte authentique.
Votre notaire vous a signalé une irrégularité urbanistique avant une vente ?
VMAR Architectes vous accompagne dans la régularisation de votre bien à Bruxelles.
Régulariser les infractions urbanistique avant de vendre
L’analyse menée par VMAR Architectes a permis d’établir que la modification de la répartition des logements et certaines adaptations volumétriques mineures à régulariser remontaient à l’origine même de la construction de l’immeuble datant de 1999.
Ces adaptations n’avaient entraîné ni augmentation du nombre de logements, ni dégradation des conditions d’habitabilité. Les logements concernés respectaient les normes du Règlement Régional d’Urbanisme (RRU) en matière de surfaces, de hauteur sous plafond et d’éclairement naturel.
Sur cette base, un permis d’urbanisme de mise en conformité a été introduit, accompagné d’une argumentation complète démontrant :
- l’ancienneté des aménagements et leur antériorité à toute occupation,
- leur intégration cohérente dans le bâti existant,
- l’absence de nuisance pour le voisinage,
- et le respect global de la réglementation urbanistique en vigueur.
Régularisation urbanistique avant vente : un choix stratégique de valorisation
En procédant à cette mise en conformité en amont de la commercialisation, les propriétaires ont opté pour une vente sereine, transparente sans dévaluation du prix de vente comme cela est malheureusement souvent le cas pour des biens en infraction urbanistique.
La régularisation urbanistique devient ainsi un outil stratégique de valorisation immobilière, transformant un risque potentiel en atout de transparence au moment de la mise en vente.
Pourquoi régulariser avant de vendre ? Ce que dit la pratique notariale
En Région de Bruxelles-Capitale, lors de toute transaction immobilière, le notaire est tenu de mentionner dans l’acte authentique les informations urbanistiques relatives au bien, notamment celles figurant dans les renseignements urbanistiques délivrés par la commune. Toute observation y figurant — même en l’absence de procès-verbal d’infraction — peut susciter des questions, retarder la vente, ou conduire l’acquéreur à exiger une réduction de prix ou une clause suspensive.
Anticiper ces situations en procédant à une régularisation avant la mise en vente, c’est donc :
- protéger la valeur du bien,
- simplifier la procédure notariale,
- et démontrer la bonne foi du vendeur vis-à-vis de l’acquéreur.
Anticiper plutôt que subir : l’approche VMAR Architectes en matière de régularisation urbanistique
Cette intervention à Berchem-Sainte-Agathe illustre l’importance d’aborder les questions urbanistiques en amont de toute transaction immobilière, en particulier dans des immeubles récents ou semi-récents où des adaptations ont pu être réalisées lors de la construction ou au cours de l’exploitation du bien, sans toujours faire l’objet d’une mise à jour des autorisations.
Grâce notre expertise en mise en conformité urbanistique préalable à la vente, VMAR Architectes accompagne propriétaires, investisseurs et gestionnaires de patrimoine immobilier dans une démarche proactive, alignée avec les attentes des notaires, agents immobiliers et acquéreurs — garantissant ainsi une transaction immobilière sécurisée, sans mauvaise surprise de dernière minute.
Vous avez des questions ?
N’hésitez pas à nous contacter pour des détails supplémentaires, nous serons ravis de vous aider.