Nous utilisons des cookies pour garantir le bon fonctionnement du site et, avec votre consentement, pour mesurer l’audience et améliorer votre expérience. Vous pouvez modifier vos choix à tout moment via le lien de gestion des cookies en bas de chaque page. Politique de confidentialité
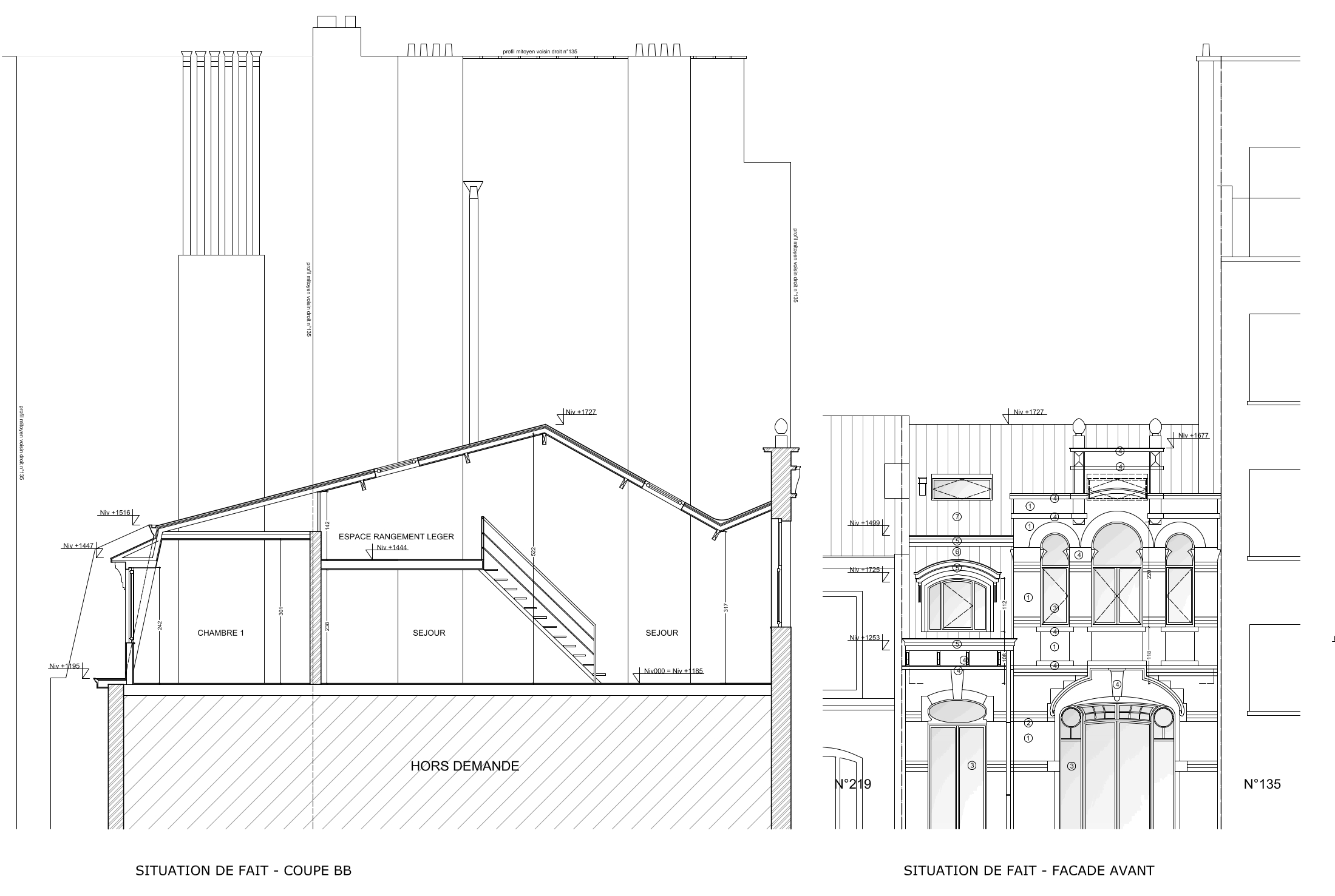
Aménagement de combles à Forest pour créer un duplex
AMENAGEMENT DE COMBLES
Description du problème urbanistique : création d'un duplex par l'aménagement de combles à Forest
Dans ce magnifique immeuble bruxellois situé le long de l’avenue Albert à Forest, l’étage sous toiture a été aménagé en un logement duplex. Les occupants actuels, ignorant cette irrégularité lors de l’achat il y a plusieurs années, nous ont contactés pour régulariser la situation urbanistique.
Solution apportée par notre bureau d’architecte : régularisation de l'aménagement
Chez VMAR Architectes, nous sommes spécialisés dans la régularisation des aménagements de combles (à Forest en dans les 18 autres communes de Bruxelles) en espaces habitables. Nous avons pris en charge la réalisation du dossier de permis d’urbanisme, incluant la collecte des documents nécessaires, la réalisation des plans et la défense auprès de l’administration. Notre expertise nous permet de démontrer les avantages des aménagements réalisés et de plaider efficacement auprès de l’Urbanisme de Forest pour obtenir la régularisation.
Vous avez des questions ?
N’hésitez pas à nous contacter pour des détails supplémentaires, nous serons ravis de vous aider.