Régularisation urbanistique à Forest : Modification de la répartition d'un logement et aménagement combles

MODIFICATION DE LA REPARTITION

Façade existante de l'immeuble en infraction

Description du problème urbanistique : Création d'un duplex dans les combles

En 2006, notre cliente achète un appartement duplex aux 2ème et 3ème étages d’un immeuble classique situé à Forest, commune bruxelloise. L’acte d’achat mentionne clairement un “penthouse” comprenant des pièces habitables installées au 2ème étage mais également au 3ème étage. Les renseignements urbanistiques fournis lors de la vente immobilière ne signalent aucune infraction.
De bonne foi, la propriétaire pense donc acquérir un bien en ordre urbanistiquement. Elle entreprend en 2007 des travaux de rénovation pour moderniser l’appartement et le rendre plus confortable.

La découverte de la non-conformité
Plusieurs années plus tard, notre cliente souhaite vendre l’appartement et il apparaît selon les derniers renseignements officiels que le 3ème étage est toujours considéré comme un “grenier – mansardes” et non comme un espace habitable. De plus, certains aménagements réalisés au fil des décennies (extension, lucarne, terrasses) n’ont jamais fait l’objet de permis d’urbanisme.

Notre cliente nous contacte afin de l’aider à régulariser l’ensemble des infractions urbanistiques dont les éléments principaux étaient les suivants :

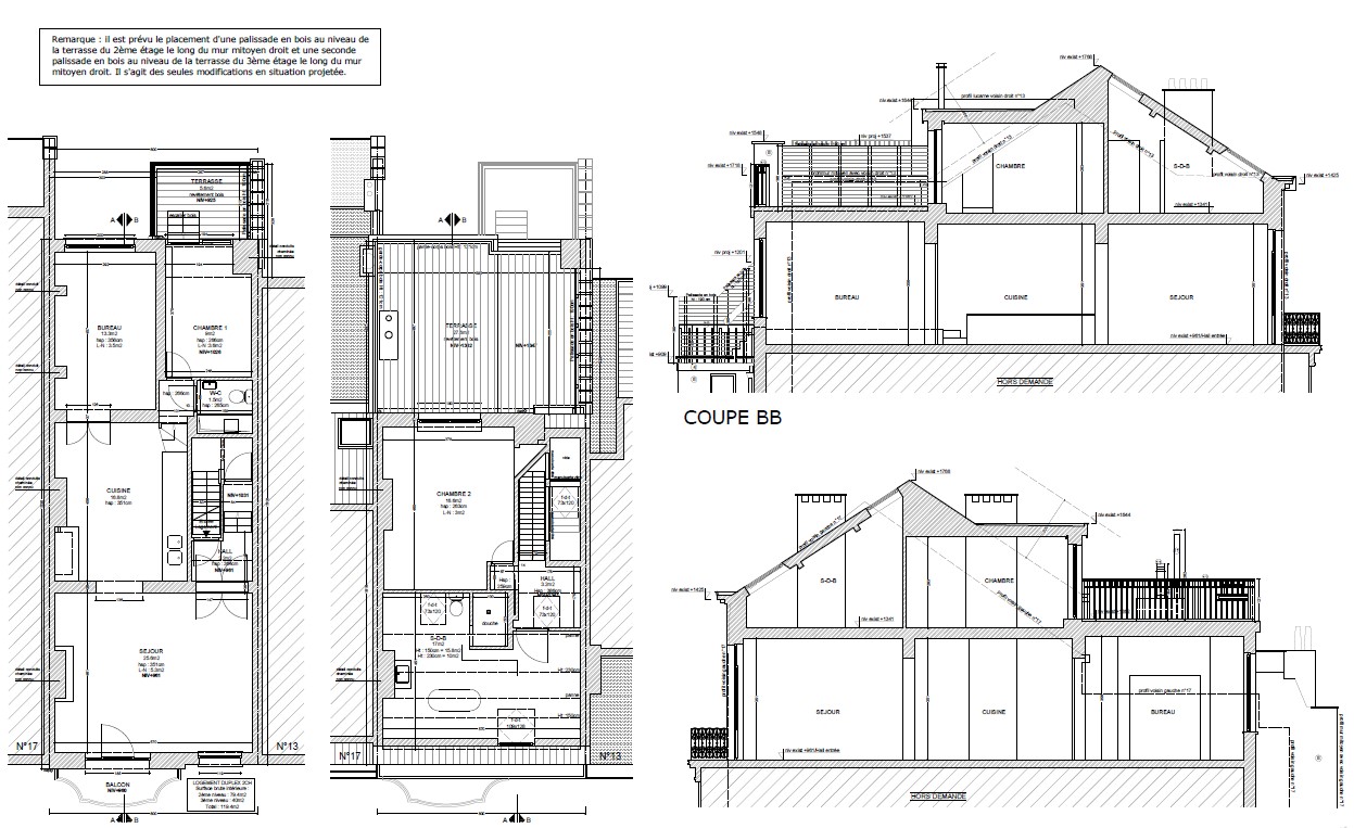
1. L’aménagement du duplex (2ème et 3ème étage)
Transformation du grenier du 3ème étage en espace habitable connecté au 2ème étage pour former un duplex de 2 chambres destiné à l’accueil d’une famille.

2. Construction d’une annexe au 2ème étage
Un volume supplémentaire en façade arrière a été construit et abrite une chambre là où ne figurait qu’un petit WC et une toiture plate sur les plans disponibles aux archives de l’urbanisme.
Les orthophotoplans historiques de Brugis de 1953 et 1963 prouvent que cette extension existe depuis plus de 60 ans, bien avant l’entrée en vigueur de la loi palynologique de l’aménagement du territoire de 1962.

3. Lucarne construite en toiture arrière
Une lucarne dans le versant arrière de toiture a été construite de manière à aménager la chambre principale du logement et à donner accès à la terrasse aménagée sur la toiture plate.
Là encore, nos recherches démontre que cette lucarne existe déjà en 1953, depuis plus de 70 ans. Les travaux sont donc prescrits.

4. Aménagement de terrasses sur toitures plates.
Deux terrasses ont été aménagées, l’une au 2ème étage accessible depuis la première chambre, l’autre au 3ème étage accessible depuis la chambre parentale.
Les plans de l’acte de base de 1993 confirment que ces terrasses existaient déjà il y a plus de 30 ans, ce qui a permis d’invoquer notamment le respect du code civil concernant les servitudes de vues (servitude de distance).

Solution apportée par VMAR Architectes : mise en conformité urbanistique du logement irrégulier

1. Recherche historique approfondie
La stratégie que nous avons mise en place pour obtenir la régularisation des différentes infractions urbanistiques résidait notamment dans la démonstration de l’ancienneté des aménagements irréguliers.

Nous avons donc rassemblé un maximum de preuves :

• Les orthophotoplans de 1953 et 1963 prouvant que l’extension et la lucarne datent d’avant 1962 (travaux prescrits)
• L’acte de base de 1993 montrant que le 3ème étage était déjà aménagé en logement distinct il y a plus de 30 ans
• L’acte d’achat de 2006 confirmant la bonne foi de l’acquéreur
• Les plans historiques établissant la continuité d’usage des terrasses

Cette recherche documentaire minutieuse a permis d’établir que la plupart des aménagements n’étaient pas récents, et répondaient à la règlementation applicable au moment de leurs réalisations.

Nous avons construit une justification en six axes principaux :

L’ancienneté et la prescription : Plusieurs éléments datent d’avant 1962, rendant toute poursuite impossible d’un point de vue légal.

L’absence de surdensification : La création du duplex n’a pas augmenté le nombre de logements dans l’immeuble (3 logements en situation de droit, 3 logements maintenus).

La qualité du logement : Le duplex offre un logement familial adapté aux besoins actuels avec 120 m², 2 chambres, des espaces extérieurs et une belle luminosité naturelle.
La préservation du patrimoine : La volumétrie intérieure des pièces principales au 2ème étage a été respectée, avec les trois pièces en enfilade, typique des immeubles bruxellois, mises en valeur par une rénovation soignée et qualitative.
L’intégration au contexte : Les terrasses et la lucarne s’inscrivent dans le bâti environnant où de nombreux voisins disposent d’aménagements similaires. Ces terrasses permettent également d’offrir un espace extérieur à la famille occupant les lieux, ce qui répond au bon aménagement des lieux.

La bonne foi de l’acquéreur : Les renseignements urbanistiques de 2006 ne mentionnaient aucune infraction, et l’acte d’achat décrivait explicitement des espaces habitables au 3ème étage

Vous êtes dans une situation similaire ?
Si vous avez acheté un bien dans l’une des communes de Bruxelles et découvrez des aménagements non conformes, ou si vous souhaitez simplement vérifier la situation urbanistique de votre logement, n’attendez pas qu’un problème survienne.
En tant qu’architectes spécialisé en régularisation d’infractions urbanistiques à Bruxelles, VMAR Architectes accompagne les propriétaires dans toutes les communes de la Région bruxelloise : Forest, Ixelles, Uccle, Saint-Gilles, Anderlecht, Schaerbeek, Etterbeek, etc.
Contactez-nous pour un premier diagnostic de votre situation. Nous trouverons la meilleure stratégie pour régulariser votre bien.

Vous avez des questions ?

N’hésitez pas à nous contacter pour des détails supplémentaires, nous serons ravis de vous aider.

Contactez-nous