Nous utilisons des cookies pour garantir le bon fonctionnement du site et, avec votre consentement, pour mesurer l’audience et améliorer votre expérience. Vous pouvez modifier vos choix à tout moment via le lien de gestion des cookies en bas de chaque page. Politique de confidentialité
Régularisation de la construction d'une annexe en façade arrière d'une maison
CREATION ANNEXE EXTENSION
Description du problème urbanistique : régulariser des travaux sans permis d'urbanisme
Le propriétaire de cette maison située à Saint-Josse-ten-Noode, non loin du Square Armand Steurs a fait appel à nous pour introduire une demande de régularisation urbanistique visant à mettre en conformité des travaux réalisés par les précédents propriétaires sans autorisation préalable. Bien qu’aucun procès-verbal d’infraction n’ait été dressé par l’administration communale, le propriétaire souhaitait sécuriser juridiquement sa situation et éviter d’éventuelles sanctions, telle que des amendes administratives qui peuvent s’élever parfois à plusieurs milliers d’euros.
La demande de régularisation portait sur trois interventions principales réalisées sans permis :
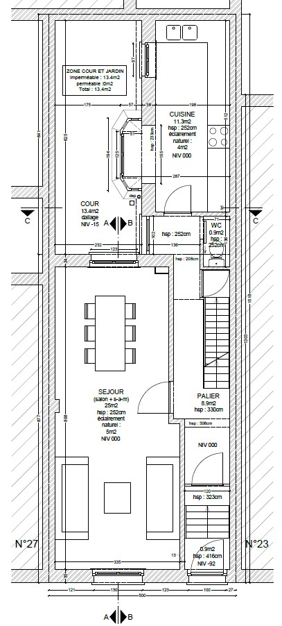
• La construction d’une annexe en façade arrière au rez-de-chaussée
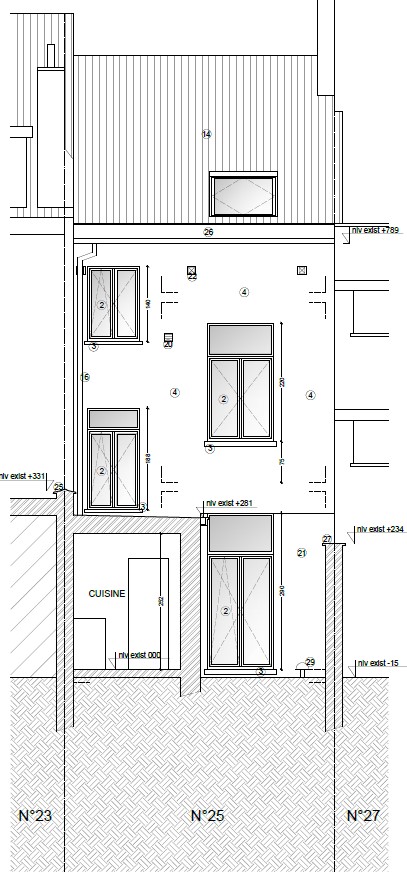
• Le remplacement des menuiseries en façade avant
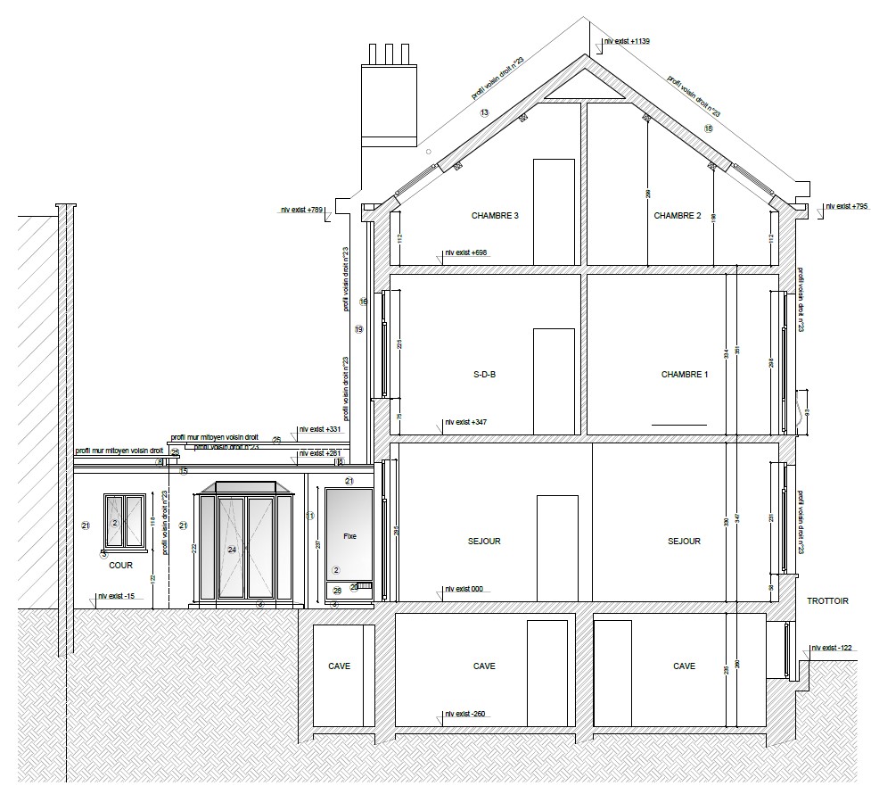
• L’aménagement des combles en espaces habitables et la création d’une salle de bain au premier étage.
Notre approche pour régulariser les infractions urbanistiques :
Face à ces irrégularités urbanistiques, notre bureau d’architectes a élaboré une stratégie de régularisation nourrie par une analyse minutieuse du contexte réglementaire et bâti.
La modification volumétrique en façade arrière : l’annexe existante, déjà présente sur les orthophotoplans de 1977, a transformé l’habitabilité du logement. Elle accueille aujourd’hui une cuisine généreuse et lumineuse, qui dialogue naturellement avec les espaces de vie et la cour intérieure. Cette extension s’insère avec discrétion dans le tissu urbain dense de l’îlot et ne porte aucun préjudice au voisinage.
Le remplacement des châssis : réalisé en 1989, ce changement de menuiseries répondait à un besoin légitime d’amélioration du confort thermique et acoustique. Les nouveaux châssis s’accordent avec l’esthétique de la façade avant et le caractère du bâti environnant de la Région de Bruxelles-Capitale, malgré le fait qu’il ne soient pas en bois.
L’aménagement des combles : cette transformation a permis d’adapter la maison aux modes de vie contemporains, en créant trois chambres conformes aux normes d’habitabilité
La régularisation de ces travaux sans permis nécessitait de solliciter certaines dérogations urbanistiques au Titre I et au RCU, notamment concernant :
• La profondeur de l’annexe arrière
• La surface perméable du terrain
• Les caractéristiques des menuiseries
Grâce à notre expertise en régularisation d’infractions urbanistiques, nous avons pu défendre chaque dérogation demandée en expliquant à l’urbanisme de Saint-Josse que le bon aménagement des lieux était rencontré. Nous avons notamment soulevé, que malgré les dérogation, la maison et son annexe s’inscrivent dans le contexte bâti de la commune qui dispose d’un bâti dense avec des parcelles de petites tailles datant d’une époque où les considérations urbanistiques étaient différentes.
L’administration de l’urbanisme de Saint-Josse-ten-Noode a considéré nos arguments et a délivré le permis d’urbanisme pour la régularisation de l’ensemble des irrégularités constatées.
Vous avez des questions ?
N’hésitez pas à nous contacter pour des détails supplémentaires, nous serons ravis de vous aider.