Nous utilisons des cookies pour garantir le bon fonctionnement du site et, avec votre consentement, pour mesurer l’audience et améliorer votre expérience. Vous pouvez modifier vos choix à tout moment via le lien de gestion des cookies en bas de chaque page. Politique de confidentialité
Division d'une maison unifamiliale en plusieurs logements et construction d'annexes
DIVISION MAISON
Description du problème urbanistique : division d'une maison unifamiliale en plusieurs logements et construction d'annexes
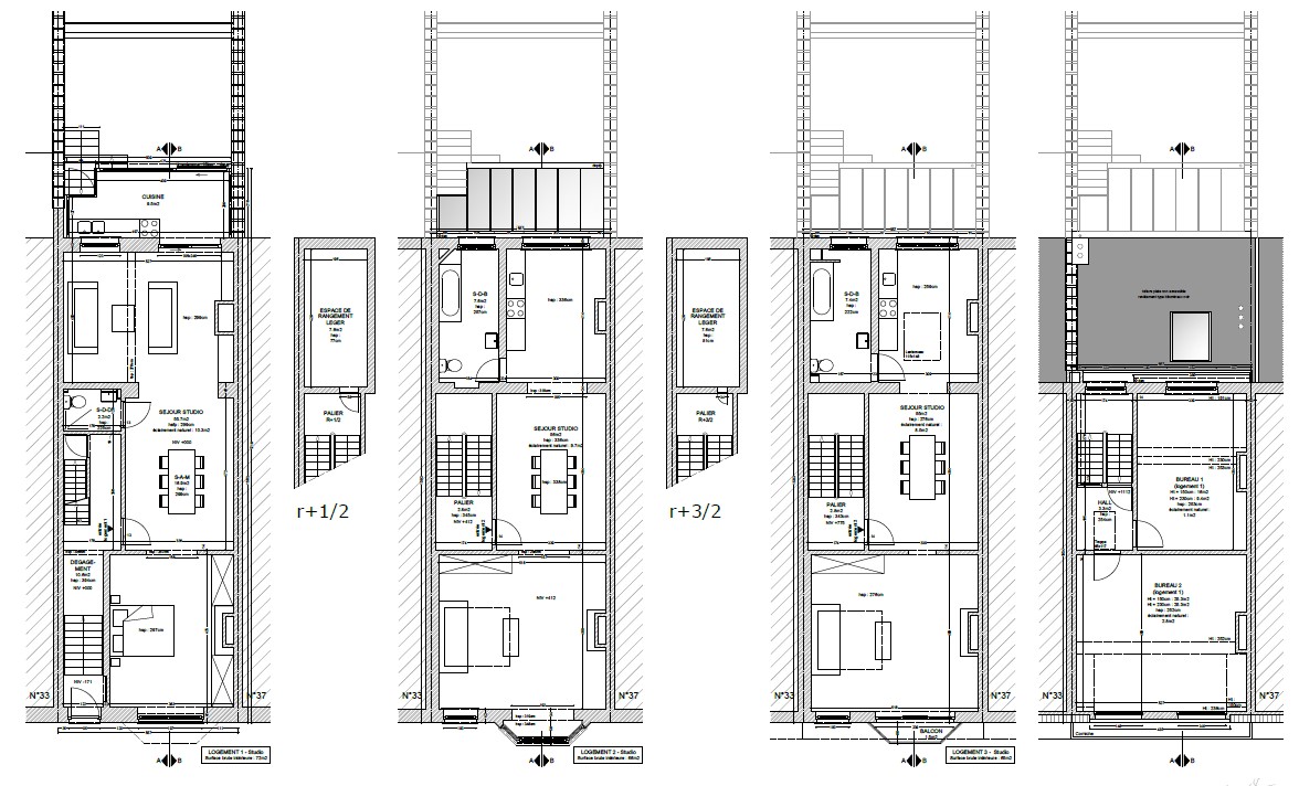
Ce projet de régularisation urbanistique à Saint-Josse-ten-Noode concerne des travaux réalisés entre 1970 et 2000 dans le cadre de la division d’une maison unifamiliale en plusieurs logements. VMAR Architectes a été mandaté pour introduire un permis d’urbanisme ayant pour objet la mise en conformité de la situation existante de fait. L’introduction du permis s’inscrit dans une démarche volontaire du propriétaire et en l’absence de tout procès-verbal d’infraction dressé par l’administration communale.
Cette approche proactive permet de clarifier définitivement la situation urbanistique du bien, de sécuriser juridiquement les logements existants et de valoriser le patrimoine immobilier.
Notre solution : la régularisation complète des actes et travaux irréguliers
La demande de permis de régularisation urbanistique porte sur plusieurs interventions réalisées au fil des décennies :
• La division de la maison unifamiliale en trois logements.
• Le remplacement des châssis de la façade avant.
• La construction d’une véranda sur la terrasse du rez-de-chaussée surélevé.
• La construction de deux lucarnes (chiens-assis) dans les versants de toiture.
Ces transformations sont caractéristiques de l’évolution du bâti bruxellois et reflètent l’adaptation progressive de l’immeuble à une occupation en logements multiples, typique du tissu urbain dense de Saint-Josse-ten-Noode.
Ce dossier illustre l’expertise de VMAR Architectes concernant les projets de régularisation d’infractions urbanistiques à Bruxelles, particulièrement pour les immeubles divisés en plusieurs logements. Notre approche repose sur une analyse rigoureuse de l’existant, de l’ancienneté des actes et travaux irréget une maîtrise précise des procédures urbanistiques bruxelloises.
Résultat : permis de régularisation octroyé sans conditions
L’ensemble des infractions urbanistiques (nombre de logements, modifications volumétriques, esthétique de façade) ont été régularisées avec succès. Le permis d’urbanisme a été octroyé sans conditions au cours de l’année 2025.
Vous avez des questions ?
N’hésitez pas à nous contacter pour des détails supplémentaires, nous serons ravis de vous aider.