Nous utilisons des cookies pour garantir le bon fonctionnement du site et, avec votre consentement, pour mesurer l’audience et améliorer votre expérience. Vous pouvez modifier vos choix à tout moment via le lien de gestion des cookies en bas de chaque page. Politique de confidentialité
Régularisation urbanistique à Laeken pour la fermeture de balcons de plusieurs appartements
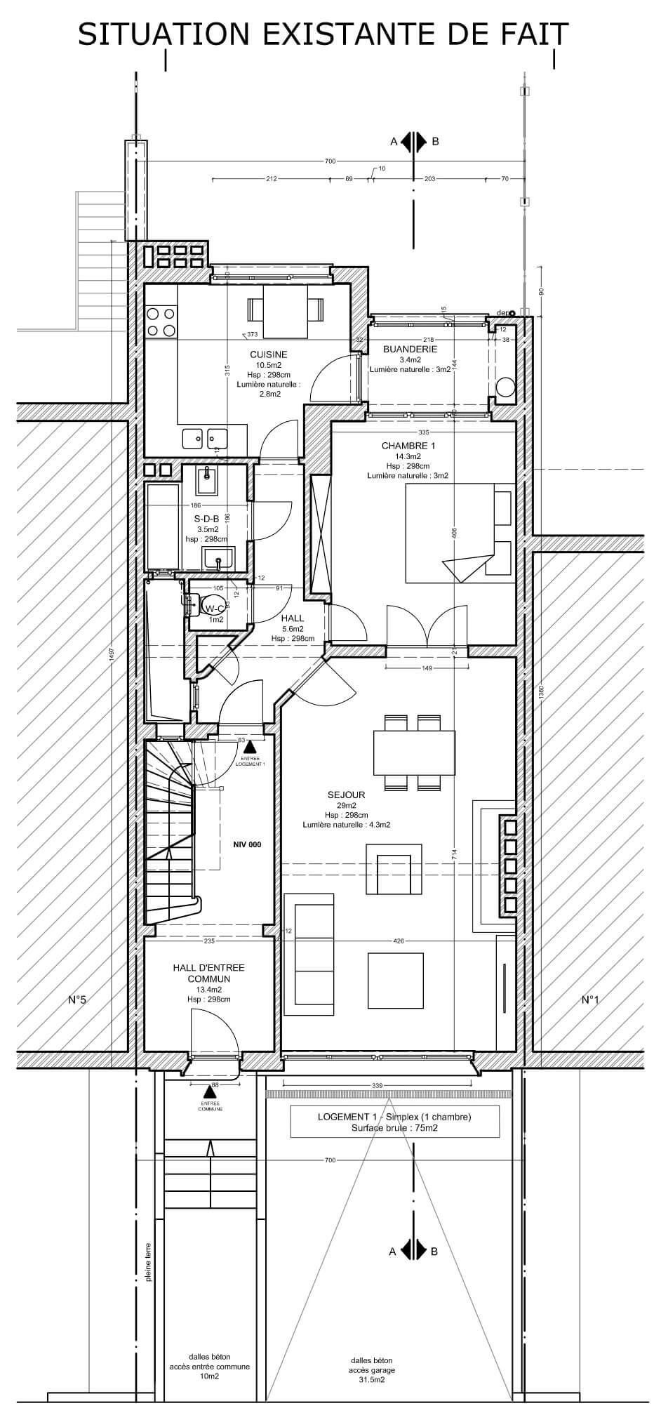
FERMETURE ANCIEN BALCON TERRASSE
Description du problème urbanistique : fermeture des balcons d'un immeuble
Dans un immeuble de trois logements situé à Laeken, toutes les anciennes terrasses ont été fermées pour créer des buanderies, sans demande préalable de permis d’urbanisme. Cette modification a entraîné une situation d’infraction urbanistique nécessitant une régularisation. En effet, suite à une plainte des voisins, un contrôleur de l’urbanisme est descendu sur les lieux et a dressé un procès-verbal d’infraction urbanistique.
Solution apportée par notre bureau d’architectes : régularisation de la fermeture des balcons
Nous avons obtenu un avis favorable de l’urbanisme de Bruxelles-ville, dont fait partie Laeken, en présentant un dossier de régularisation argumenté. En plus de notre argumentation, nous avons mené des recherches approfondies pour fournir des preuves d’ancienneté des travaux réalisés. Nous considérons qu’il s’agit d’un point essentiel à fournir dans le dossier de permis d’urbanisme déposé, puisqu’il permet l’application de certaines règlementations parfois plus favorables. Cette approche a renforcé notre stratégie de défense et permis l’obtention de la régularisation de l’immeuble.
Vous avez des questions ?
N’hésitez pas à nous contacter pour des détails supplémentaires, nous serons ravis de vous aider.