Nous utilisons des cookies pour garantir le bon fonctionnement du site et, avec votre consentement, pour mesurer l’audience et améliorer votre expérience. Vous pouvez modifier vos choix à tout moment via le lien de gestion des cookies en bas de chaque page. Politique de confidentialité
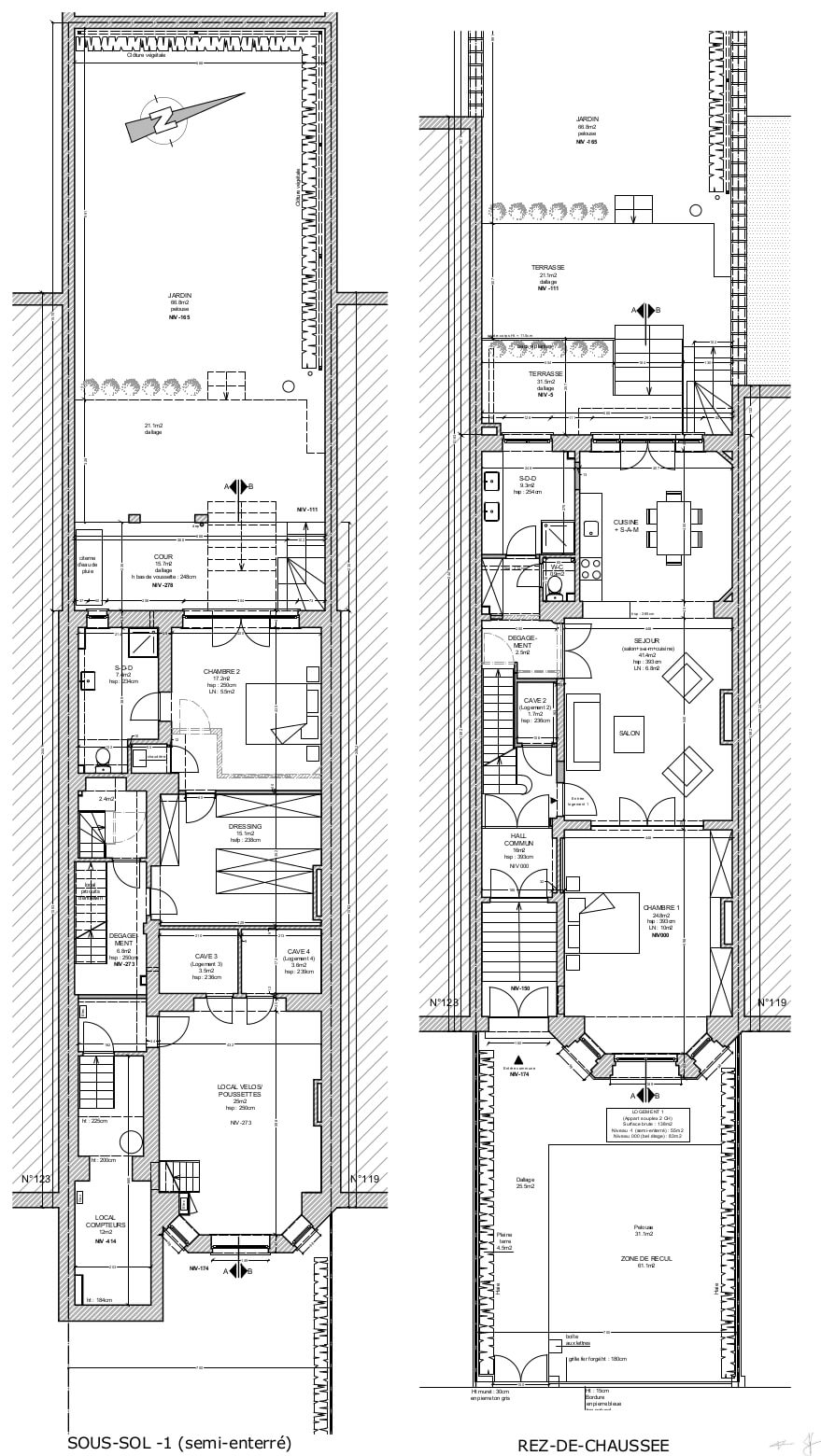
Régularisation d'une maison à Etterbeek : division en 4 logements
DIVISION MAISON
Description du problème urbanistique : division d’une maison en plusieurs logements
Nous avons mobilisé nos compétences pour démontrer aux autorités urbanistiques la conformité de l’immeuble aux exigences d’aménagement des lieux.
Grâce à notre intervention, le propriétaire a pu :
– mettre son bien en règle
– revendre les différents appartements
– réaliser une plus-value immobilière par rapport à la situation d’origine.
La division de maison en plusieurs logements est l’un des types de permis d’urbanisme que nous traitons le plus régulièrement.
Solution apportée par notre bureau d’architectes : la régularisation de la maison à Etterbeek
Notre cabinet d’architecture a été sollicité pour mettre en conformité la division d’un hôtel de maître situé sur l’une des avenues les plus prestigieuses d’Etterbeek. Cette division en quatre logements distincts nécessitait l’obtention d’un permis d’urbanisme.
Vous avez des questions ?
N’hésitez pas à nous contacter pour des détails supplémentaires, nous serons ravis de vous aider.