Nous utilisons des cookies pour garantir le bon fonctionnement du site et, avec votre consentement, pour mesurer l’audience et améliorer votre expérience. Vous pouvez modifier vos choix à tout moment via le lien de gestion des cookies en bas de chaque page. Politique de confidentialité
Régularisation de 7 logements dans un immeuble du Sablon à Bruxelles
DIVISION MAISON
Description du problème urbanistique : Modification du nombre de logements au sein d’un immeuble
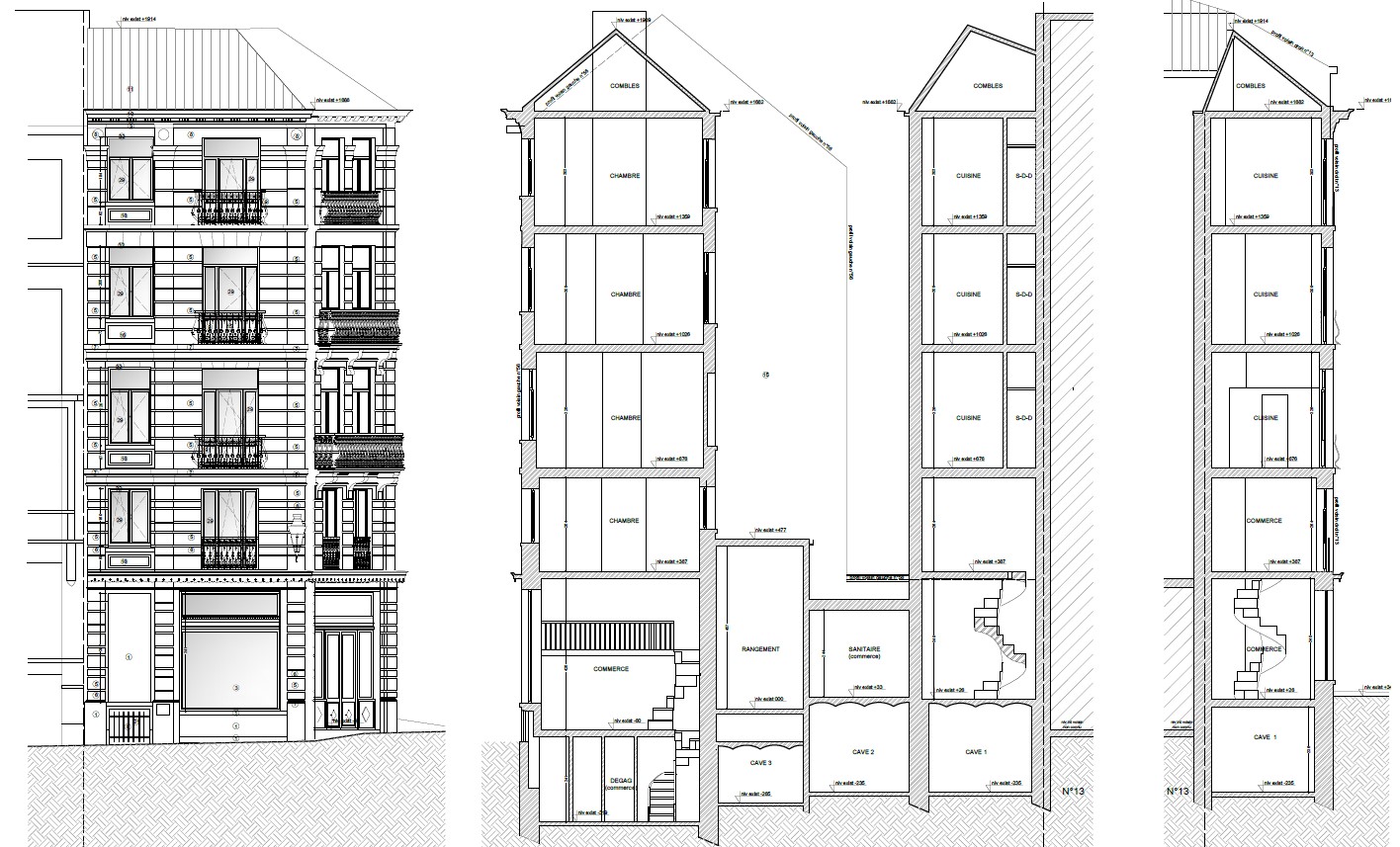
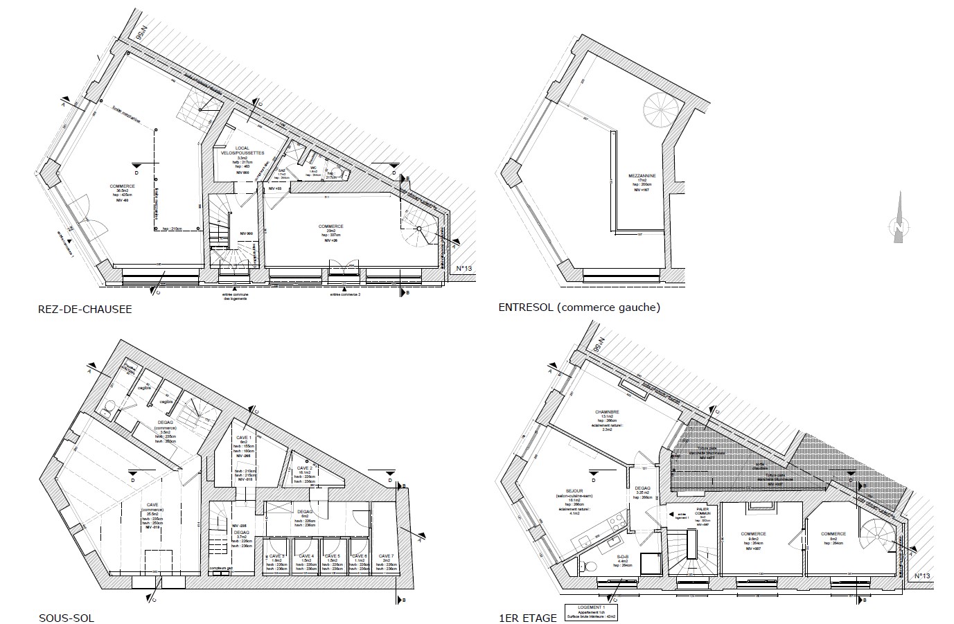
Au cœur du quartier du Sablon, notre client possède un immeuble de rapport comprenant deux commerces en rez-de-chaussée et sept logements aux étages.
Le problème ? Selon l’urbanisme de la Ville de Bruxelles, seuls deux logements étaient officiellement reconnus aux étages. Les cinq autres logements, pourtant loués depuis des décennies, se trouvaient dans une zone grise juridique.
Cette situation, fréquente dans les immeubles anciens à Bruxelles, créait plusieurs problèmes :
• Difficultés pour louer légalement l’ensemble des logements
• Blocage en cas de vente à la découpe des différents appartements
• Contrôle de l’urbanisme avec risque de mise en demeure, procès verbal pour infraction urbanistique et amende administrative
• Insécurité juridique pour les locataires et futurs acquéreurs
L’immeuble étant situé en zone d’intérêt culturel, historique, esthétique ou d’embellissement (ZICHEE), la régularisation nécessitait un passage en commission de concertation.
Les objectifs du propriétaire
Notre client nous a mandatés pour régulariser la situation urbanistique de son immeuble avec des objectifs clairs :
1. Sécuriser juridiquement les sept logements existants
2. Pouvoir louer en toute légalité
3. Préparer une éventuelle vente à la découpe
4. Valoriser son patrimoine immobilier
5. Régulariser également le remplacement des châssis de façade
Solution apportée VMAR Architectes : régularisation urbanistique des sept logements
Notre stratégie : démontrer l’ancienneté et la conformité historique
1. Recherche historique approfondie
La clé du succès résidait dans une recherche documentaire visant à prouver l’ancienneté des sept logements. Nous avons consulté :
• Les archives communales de la Ville de Bruxelles située rue des Tanneurs
• Les actes notariés successifs
• Les renseignements urbanistiques de différentes époques
• L’historique de compteurs SIBELGA et la liste des habitants (historique des domiciliations)
Cette recherche a permis d’établir que les sept logements existaient depuis plusieurs décennies, bien avant l’entrée en vigueur des réglementations actuelles beaucoup plus restrictives.
2. L’enjeu réglementaire crucial
Le point central du dossier consistait à démontrer que nous devions appliquer la réglementation en vigueur au moment de la création des logements, et non celle d’aujourd’hui.
La réglementation urbanistique bruxelloise a considérablement évolué, notamment concernant les surfaces minimales, les normes d’habitabilité, et la densité de logements autorisée. Si l’on appliquait les normes actuelles, plusieurs des sept logements ne pourraient pas être reconnus, étant fortement en dérogation au Titre II du RRU (normes d’habitabilité).
Notre mission consistait donc à démontrer la conformité des logements aux normes historiques applicables, une argumentation technique nécessitant une bonne connaissance de l’évolution réglementaire bruxelloise.
3. Constitution du dossier de permis d’urbanisme
Nous avons préparé un dossier de régularisation complet comprenant :
• Une note explicative détaillée retraçant l’historique de l’immeuble et reprenant un ensemble d’arguments prouvant le respect du bon aménagement des lieux.
• Des plans détaillés de tous les logements
• Des preuves d’ancienneté (actes, permis anciens, photos)
• Une étude de conformité de chaque logement aux réglementations applicables lors de leur création
• Un reportage photographique intérieur de l’état existant
4. Défense en commission de concertation
La commission de concertation constitue souvent l’étape la plus délicate d’une régularisation en ZICHEE. Lors de la séance, nous avons :
• Présenté l’historique complet de l’immeuble
• Répondu aux questions techniques des membres
• Démontré l’absence de nuisances causées par les sept logements
• Justifié la bonne foi du propriétaire
• Argumenté contre la tendance de l’administration à réduire le nombre de logements
Le résultat : une régularisation complète
Après instruction et passage en commission de concertation, le permis d’urbanisme de régularisation a été accordé. Les sept logements sont désormais officiellement reconnus, ainsi que le remplacement des châssis.
La tendance de l’administration bruxelloise
Une volonté de réduire la densité de logements au sein des immeubles.
Il est important de comprendre que l’urbanisme bruxellois tend à réduire le nombre de logements dans le bâti ancien. Si cet objectif est compréhensible pour les nouveaux projets, son application rétroactive aux immeubles anciens pose problème.
Des propriétaires ayant acheté de bonne foi se voient parfois contraints de renoncer à plusieurs logements, entraînant des pertes financières importantes et une dévalorisation de leur patrimoine.
Notre rôle : défendre vos intérêts
En tant qu’architecte spécialisé en régularisation urbanistique, mon rôle est de défendre vos intérêts légitimes. Lorsque des logements existent depuis longtemps et sont conformes aux normes historiques, il est justifié de se battre pour leur reconnaissance officielle.
Vous avez des questions ?
N’hésitez pas à nous contacter pour des détails supplémentaires, nous serons ravis de vous aider.