Nous utilisons des cookies pour garantir le bon fonctionnement du site et, avec votre consentement, pour mesurer l’audience et améliorer votre expérience. Vous pouvez modifier vos choix à tout moment via le lien de gestion des cookies en bas de chaque page. Politique de confidentialité
Fermeture d'un balcon afin de créer un espace habitable
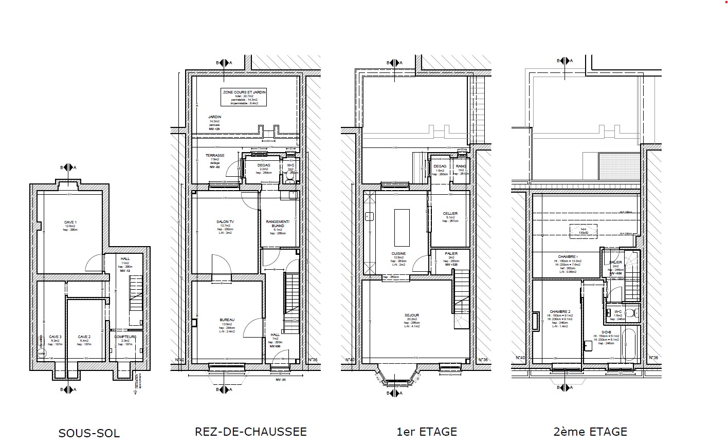
FERMETURE ANCIEN BALCON
L'infraction urbanistique constatée : fermeture d'un balcon, aménagement de combles et remplacement de châssis
L’expertise réalisée sur cette maison située à Berchem-Sainte-Agathe a révélé plusieurs travaux effectués sans permis d’urbanisme nécessitant une régularisation. Parmi les modifications identifiées figurent notamment
– le remplacement des châssis en bois d’origine par de nouveaux châssis en PVC imitation bois sur la façade avant,
– la construction d’une petite annexe au rez-de-chaussée,
– la fermeture d’un ancien balcon en façade arrière à l’étage,
– l’aménagement des combles en salle de bain et chambre.
Ces transformations, bien que courantes dans les habitations du quartier de Berchem-Sainte-Agathe, constituent des infractions urbanistiques au regard de la législation bruxelloise et du Règlement Régional d’Urbanisme (RRU). La fermeture du balcon, en particulier, a modifié la volumétrie de la maison sans autorisation préalable.
La solution proposée par VMAR Architectes : régularisation complète des infractions urbanistiques
Face à cette situation, VMAR Architectes a élaboré un dossier complet de régularisation urbanistique. Nous avons défendu auprès de l’urbanisme que l’ensemble des transformations réalisées s’inscrivaient dans le respect du bon aménagement des lieux. En effet, les différentes modifications apportées à cette maison ont considérablement amélioré son habitabilité en adaptant les espaces aux normes de confort actuelles.
L’aménagement des combles a permis d’offrir un espace supplémentaire habitable, tandis que la fermeture du balcon a permis de créer un espace supplémentaire en relation avec la cuisine pouvant servir de cellier. Ces interventions s’avèrent cohérentes avec l’évolution du tissu résidentiel de Berchem-Sainte-Agathe, où de nombreuses habitations ont connu des transformations similaires au fil des années.
D’autre part, l’extension limitée au rez-de-chaussée et le remplacement des menuiseries extérieures en façade avant n’ont pas porté atteinte à l’architecture de cette maison, et n’ont entrainé aucune nuisance pour le voisinage.
Vous êtes confronté à une infraction urbanistique à Berchem-Sainte-Agathe ? VMAR Architectes vous accompagne dans toutes vos démarches de régularisation : fermeture de balcon, extension non autorisée, remplacement de châssis, aménagement de combles, etc. Notre connaissance approfondie des procédures communales de Berchem-Sainte-Agathe vous permettra de faciliter l’obtention de votre permis d’urbanisme.
Vous avez des questions ?
N’hésitez pas à nous contacter pour des détails supplémentaires, nous serons ravis de vous aider.